LIMITED AVAILABILITY

Flamingo Villas Mina

Mina (Ras Al Khaimah)

STARTING PRICE AED 1.8M
USD 490,463
HANDOVER Completed
SCROLL DOWN FOR DETAILS

Flamingo Villas Mina

Flamingo Villas Mina delivers contemporary waterfront villa living with exclusive homes featuring flamingo-inspired design, comprehensive amenities, and strategic Maryam Island positioning creating distinctive flamingo-Mina lifestyle. This Eagle Hills villa development offers 3-5 bedroom flamingo villas with contemporary architecture, generous private plots, pools, landscaped gardens with tropical plantings, covered parking, open-plan interiors, modern kitchens with quality appliances, elegant bathrooms, maid quarters, and smart home systems positioned within Mina by Maryam Island. Flamingo residents enjoy comprehensive Mina amenities including community pools, premium fitness facilities, landscaped parks, beach access, marina facilities, children play areas, retail and dining, and proximity to Maryam Island attractions. Located within Mina by Maryam Island Sharjah with strategic positioning providing waterfront atmosphere while maintaining excellent connectivity to Sharjah city within 15 minutes and Dubai within 25 minutes, Flamingo Villas appeals to families seeking waterfront villa living, and investors targeting Mina villa rental markets with expected yields of 6.5-7.5%. Starting from approximately AED 2.5M-5M with Eagle Hills payment plans, Flamingo delivers distinctive Mina positioning and Sharjah villa affordability generating steady rental demand from families drawn to waterfront living and Maryam Island infrastructure, offering strong appreciation potential through Eagle Hills reputation, Mina momentum, and consistent villa demand where flamingo positioning creates balanced lifestyle.

Project Details

Developer RAK Properties
Starting Price AED 1,800,000
Handover Completed
Units Villas

Project Features & Amenities

24/7 Cctv
70 Minutes To Dubai
Beach And Sea
Green Community

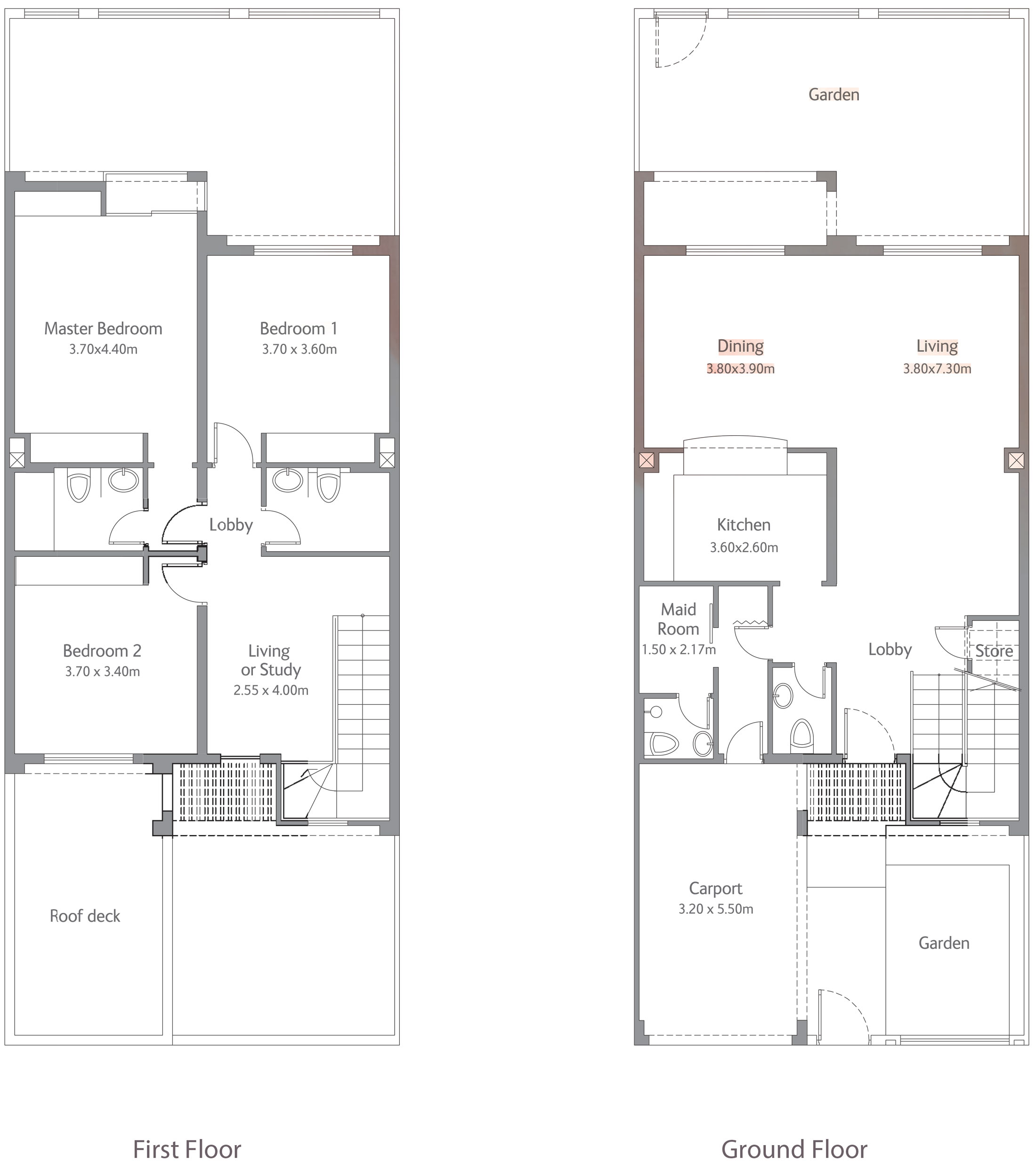
Floor Plan

Unit Type
Area
Starting Price
2-Bedroom Units
N/A
Upon Request
RAK Properties
Developer
2-Bedroom Units

2-Bedroom Units

Living Area N/A
Starting Price Upon Request

Location

Mina (Ras Al Khaimah), Ras Al Khaimah

Mortgage Calculator

Calculate your estimated monthly payments

Estimation
Monthly Payment AED 0
Loan Amount AED 0
Total Interest AED 0
Total Payment AED 0

Mina (Ras Al Khaimah)

Mina establishes Ras Al Khaimah waterfront district featuring marina facilities, coastal positioning, residential developments, and Gulf access creating northern Emirates maritime community for yacht owners and waterfront enthusiasts seeking RAK affordable marina lifestyle with berthing facilities and coastal character at accessible pricing versus expensive Dubai Marina equivalents. The RAK waterfront area delivers marina berths for yacht owners, coastal residential buildings, Gulf beach access, water sports facilities, retail outlets, dining o ...

Project Developer

RAK Properties leads Ras Al Khaimah development through Al Marjan Island beachfront luxury flagship with 7.8-kilometer beaches and upcoming Wynn casino resort, Mina Al Arab waterfront communities, and northern Emirates portfolio establishing developer as RAK primary builder attracting beachfront investors, Wynn opportunity speculators, northern location buyers, and affordable-seekers benefiting from RAK pricing 40-50% below Dubai at comparable quality with government backing and Wynn catalyst creating dramatic appreciation potential as casino resort transforms northern emirate into entertainment destination. Founded 2005 as RAK government entity, the developer dominates through Al Marjan Isl ...

Project FAQ

Where is Flamingo Villas Mina located?
Flamingo Villas Mina is located in Mina (Ras Al Khaimah).
Who is the developer of Flamingo Villas Mina?
The developer is RAK Properties.
What types of units are available?
Flamingo Villas Mina offers 1-3BR villas.
What amenities are available?
Amenities include 24/7 CCTV, 70 Minutes to Dubai, Beach and Sea, Green Community.
What is the payment plan?
Flamingo Villas Mina offers a 80/20 payment plan linked to construction milestones.
When is handover scheduled?
Handover is scheduled for Completed.
Is this a freehold project?
Yes, this is a freehold project available to all nationalities.
Can international buyers obtain a residency visa?
Yes, property purchases of AED 2M+ may qualify for the UAE Golden Visa, offering 10-year residency.
WHATSAPP